- Walce
- podnośniki, platformy jezdne
- inne urządzenia przemysłowe
- Rysunek techniczny –rysunek
- Charakterystyka nośności –charakterystyka
- Model 3D – prześlij zapytanie
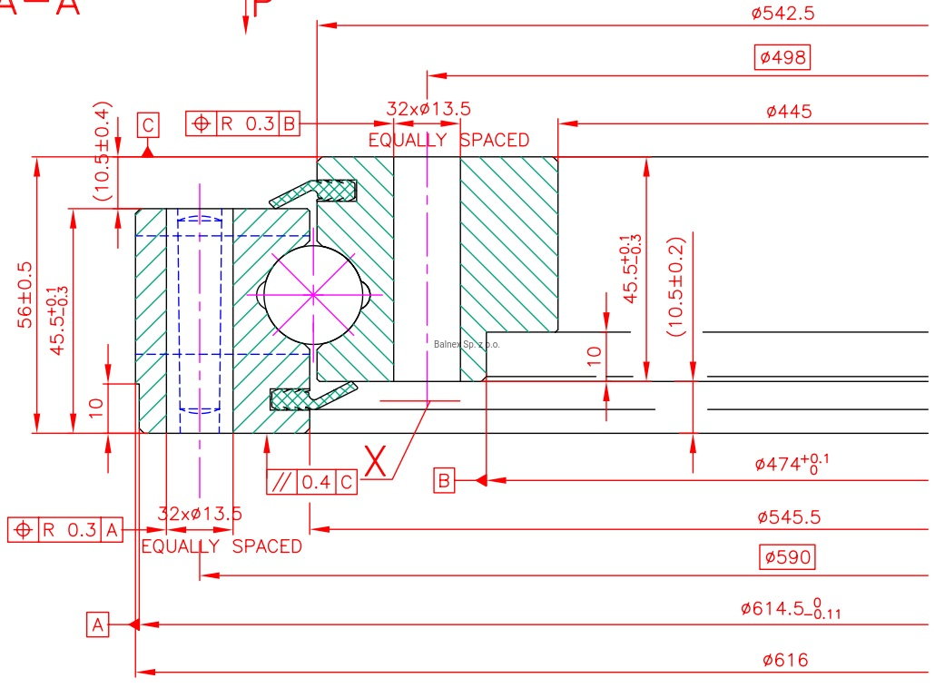
Łożysko ogólnego przeznaczenia i szerokim spektrum zastosowania.
| Ilość otworów w pierścieniu wew. /szt/ | 32 |
|---|---|
| Ilość otworów w pierścieniu zew. /szt/ | 32 |
| Rodzaj otworów w pierścieniu wew. | fi13,5 |
| Rodzaj otworów w pierścieniu zew. | fi13,5 |
| Średnica wewnętrzna /mm/ | 445 |
| Średnica zewnętrzna /mm/ | 616 |
| Waga /kg/ | 43 |
| Wysokość całkowita /mm/ | 56 |
| Wysokość pierścienia wew. /mm/ | 45.5 |
| Wysokość pierścienia zew. /mm/ | 45.5 |
| Maksymalna siła zredukowana /kN/ | 1430 |
| Maksymalny moment wywrotowy bieżni /kNm/ | 165 |






