- zgarniacze, mieszadła
- podnośniki, platformy jezdne
- żurawie samochodowe, dźwigi
- inne urządzenia przemysłowe
uzębienie zewnętrzne, Wszystkie
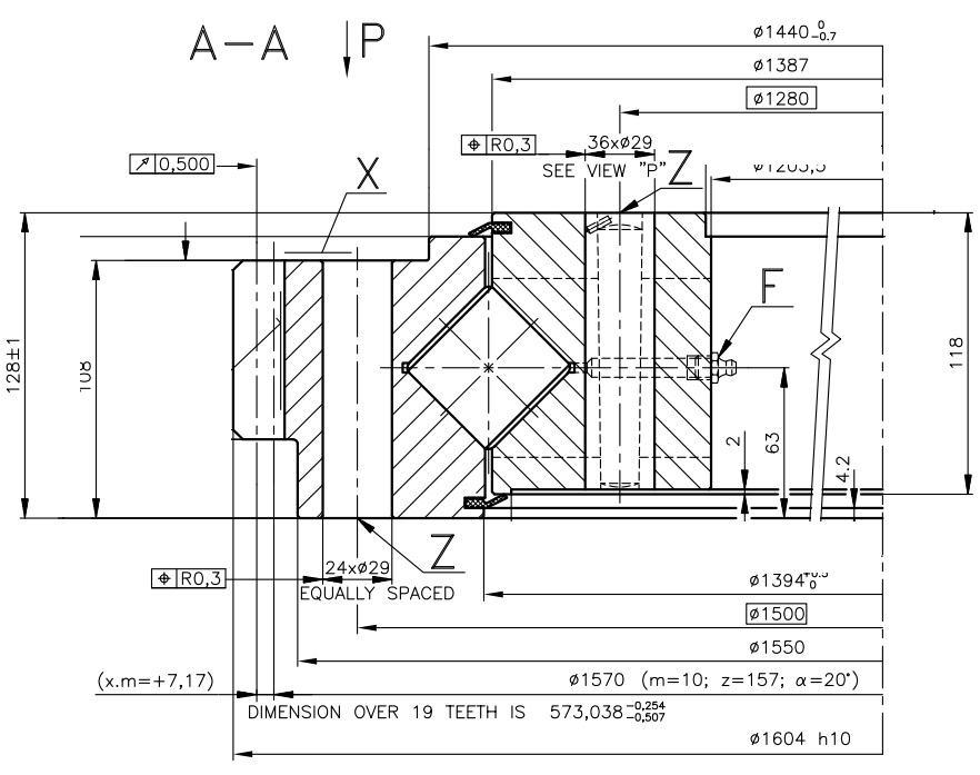
9E-1Z50-1390-1258; Łożysko o średnicy zewnętrznej 1604 mm
Zapytaj o produkt- Rysunek techniczny – prześlij zapytanie
- Charakterystyka – prześlij zapytanie
- Model 3D – prześlij zapytanie
Łożysko ogólnego przeznaczenia i szerokim spektrum zastosowania.
| Ilość otworów w pierścieniu wew. /szt/ | 36 |
|---|---|
| Ilość otworów w pierścieniu zew. /szt/ | 24 |
| Rodzaj otworów w pierścieniu wew. | fi29 |
| Rodzaj otworów w pierścieniu zew. | fi29 |
| Średnica wewnętrzna /mm/ | 1203.5 |
| Średnica zewnętrzna /mm/ | 1604 |
| Waga /kg/ | 624 |
| Wysokość całkowita /mm/ | 128 |
| Wysokość pierścienia wew. /mm/ | 116 |
| Wysokość pierścienia zew. /mm/ | 118 |
| Maksymalna siła zredukowana /kN/ | 5000 |
| Maksymalny moment wywrotowy bieżni /kNm/ | 1720 |
| Ilość zębów | 157 |
| Moduł zębów | 10 |






